Портфолио студии дизайна Маранга

Двушка для семьи с ребенком, Ноябрьск

Квартиры
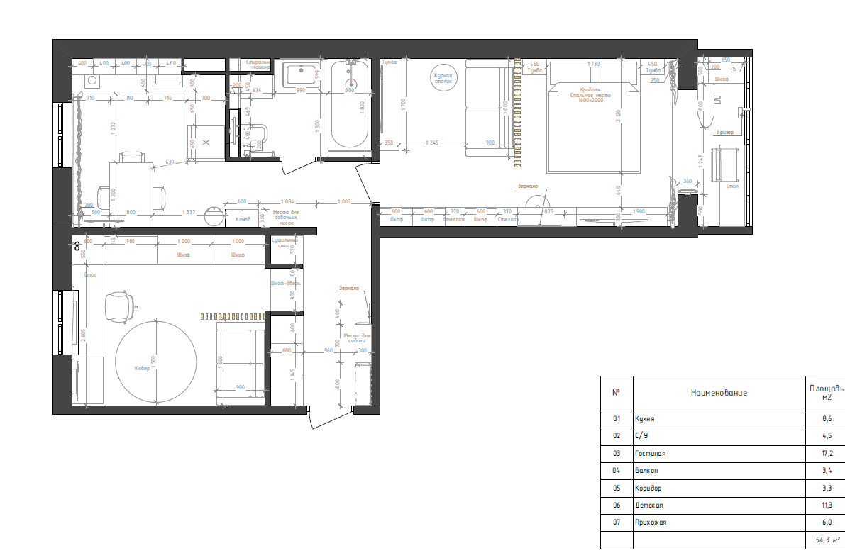
Эта двухкомнатная квартира киевской планировки в городе Ноябрьск получилась максимально выходящей за рамки представления о квартирах такого типа. Практически каждое решение в ней уникально (но это не точно)
Планировочное решение
В прихожей шкафом во всю стену уже никого не удивить, но мы поставили вровень со шкафом скрытую дверь в комнату, которая открывается внутрь и не мешает проходу. А еще в шкафу удачно спрятан сушильный шкаф для одежды. Красота и функционал. На противоположной от шкафа стене расположили большое зеркало и красивые подвесные светильники.
Прихожая
В коридоре возле кухни стоит узкая стеклянная перегородка, за которой расположены миски для собаки, а лежанка расположена в прихожей под подвесной тумбой.
Ванную и туалет объединили, и получилось большое помещение, где смогли расположить не только много шкафов, но и встроить стиральную машину. Под стиральной машиной сделан удобный выдвижной ящик, который можно использовать как корзину для белья. Несколько вариантов освещения и подсветка делают санузел комфортным для использования в любое время суток.
Санузел
В детской находится не только большой шкаф, куда влезут все вещи ребенка и даже больше, но удобный большой стол под окном. Роль спального места выполняет удобный ортопедический диван от Асконы. Ну, и вообще получилось красиво и уютно.
Детская
На кухне удалось разместить всю необходимую технику: кофемашина и чайник заняли место в узком пенале возле вентиляционной шахты, а посудомоечная машина спрятана в пенале под духовым шкафом. А еще здесь есть дополнительная вентиляция, которая спрятана под потолком и оформлена щелевым диффузором. А на случай, если рабочей поверхности будет мало, есть выдвижная столешница в одном из ящиков под столешницей.
Кухня
Большая комната играет роль гостиной и спальни. Зоны разделенный реечной перегородкой с подсветкой по потолку. А на балконе разместился шкаф со встроенной гладильной доской и небольшой барной стойкой для отдыха за чашкой кофе.
Гостиная
Гостиная
Балкон

Понравился дизайн интерьера — обсудите свой проект с дизайнером!

Проще всего написать в мессенджер:

Telegram | Whatsap

Или позвоните +7 922 472-91-38, мы работаем пн-сб с 9:00 до 18:00