Портфолио студии дизайна Маранга

Ремонт двухкомнатной квартиры для семейной пары

Квартиры
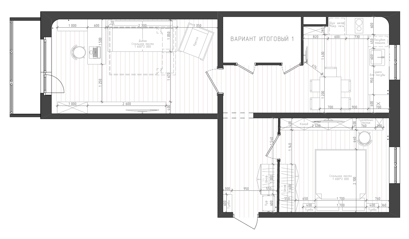
Перед нами стояла обычная задача: из стандартной киевской планировки в Ноябрьске сделать что-нибудь не совсем стандартное, не двигая при этом стены. И вот что у нас в итоге получилось.
Планировка квартиры
В прихожей расположился вместительный шкаф и открытая вешалка. А еще большое зеркало с необычной подсветкой. В зоне у входа сделали теплый пол, чтобы ногам было комфортно и обувь сохла быстрее.
Прихожая, реальные фото
Прихожая, визуализация
Гостиная разделена на рабочую зону и зону отдыха. Стена за телевизором выполнена из декоративной штукатурки под бетон. На потолке магнитный шинопровод со светильниками в виде шаров (заказчики их особенно оценили). Естественно, зонные подсветки и разные сценарии освещения.
Гостиная, реальные фото
Гостиная, визуализация
Кухня – это главная изюминка и гордость этого проекта. Мойку перенесли под окно. Вентиляционную шахту спрятали за красивым шкафом со стеклянными дверцами. Технику расположили в пеналы с двух сторон. А над столом повесили красивый светильник. И даже полноценный стол вместился.
Кухня, реальные фото
Кухня, визуализация
В спальне кроме кровати и шкафа удалось разместить книжный шкаф и туалетный столик с большим зеркалом. И конечно не обошлось без функциональных светильников и фрески за изголовьем кровати.
Спальня, реальные фото
Спальня, визуализация

Понравился дизайн интерьера — обсудите свой проект с дизайнером!

Проще всего написать в мессенджер:
Telegram | Whatsap

Или позвоните +7 922 472-91-38, мы работаем пн-сб с 9:00 до 18:00