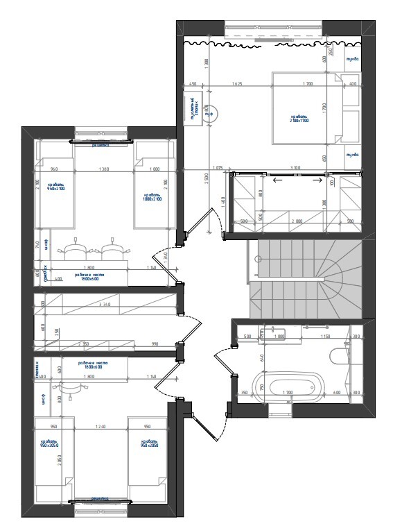
Свой дом - это хорошо, особенно когда у вас четверо детей. Такой семье нужно большое пространство. Хотя этот дом имеет небольшую полезную площадь: всего 117 кв. м., нам удалось разместить в нем все необходимое.
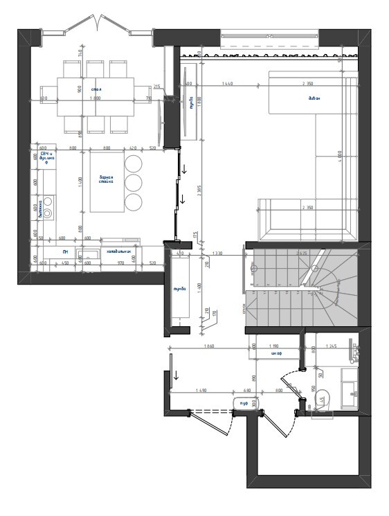
В данном проекте весь первый этаж это зона общего пользования.
На просторной кухне разместили большой стол на 8 персон и небольшой остров для быстрых перекусов. Благодаря продуманному сценарию освещения освещение можно сделать очень ярким или приглушенным, включив светильники только там где это нужно
На просторной кухне разместили большой стол на 8 персон и небольшой остров для быстрых перекусов. Благодаря продуманному сценарию освещения освещение можно сделать очень ярким или приглушенным, включив светильники только там где это нужно
Зону гостиной и кухни разделяет раздвижная перегородка из трех створок, что позволяет объединять или разделять пространство при необходимости. В гостиной расположился большой четырехметровый диван для уютных семейных вечеров
В доме два санузла, что позволит избежать очередей и споров по утрам. И каждый может выбрать то, что ему больше по душе: ванная или душ.
Лестница, как и весь первый этаж выложена керамогранитом в цвете оникс. Подсветка ступеней реагирует на движение и включается автоматически, а светильники на стене и потолке можно включить как с первого этажа так и со второго.
В жилых комнатах второго этажа на полу замковый кварцвинил выложенный елочкой, это делает пространство более теплым. В спальне родителей благодаря размерам комнаты удалось сделать отдельную гардеробную. Еще одна гардеробная комната расположилась между детскими.